
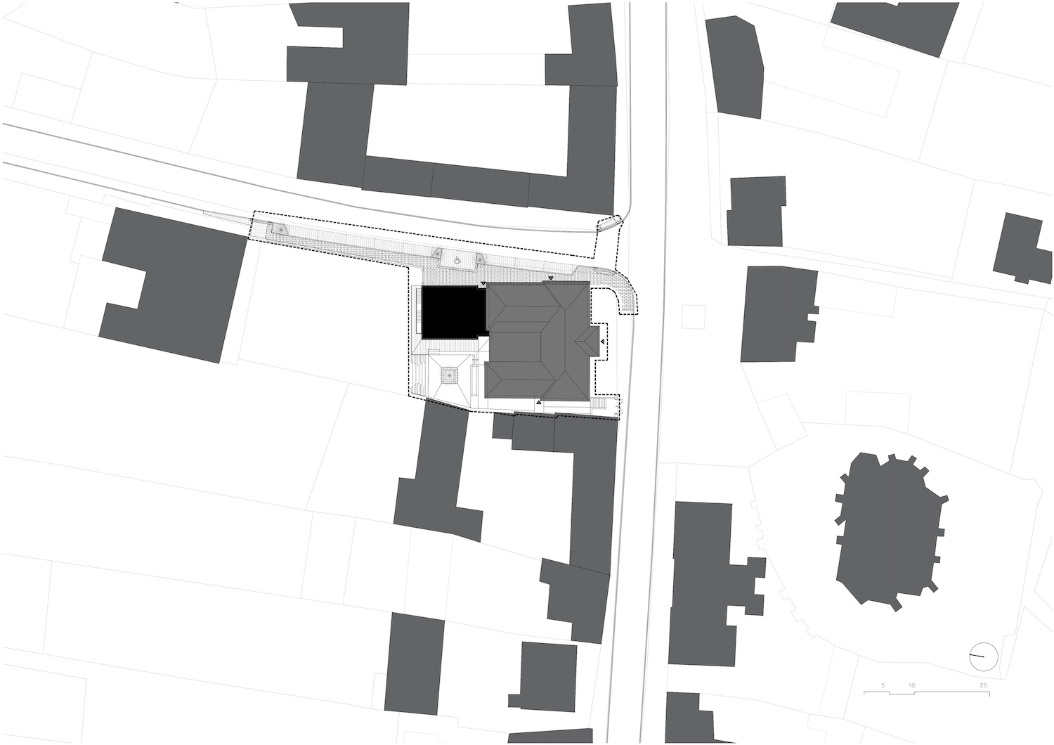
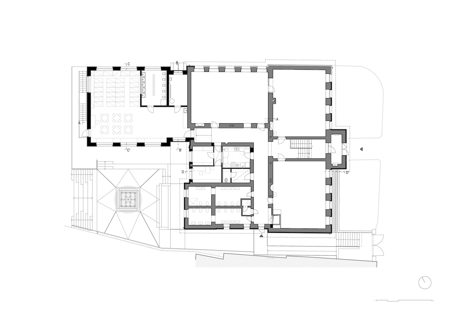
Projekt řeší přístavbu stávající historické budovy školky a navýšení její kapacity. Jednoduchý kubický novotvar byl umístěn směrem do stávajícího dlážděného nádvoří. Dvoupatrová přístavba obsahuje nový hlavní vstup a v každém patře přístavby je navržena jedna nová třída se zázemím, v přízemí i se šatnou. V návaznosti na spodní třídy je navržena i nová podoba nádvoří s motivem stromu uprostřed atypického sedacího prvku. Klesající terén dnešní zahrady umožňoval propojení úrovně horního nádvoří se zahradou formou sedacích schodů. V suterénu přístavby školky je umístěn venkovní sklad hraček. Součástí projektu je rovněž dispoziční úprava stávající budovy návrhem nových centrálních šaten a její celková energetická optimalizace.