
Architektonická studie prověřuje možnost revitalizace veřejného prostoru v obci Blučina, pro které se vžilo neformální označení „Dolní náměstí“. Návrhem se studie vrací ke koncepci návsi jako důležitého komunikačního bodu v obci, který bude splňovat nejenom dopravní a komunikační nároky dneška, ale bude i podporovat společenská setkání na formální či neformální úrovni a tím přispěje k rozvíjení komunity občanů obce. Tedy aby nesloužilo jenom jako prázdné prostranství pro přechod mezi lékárnou a řeznictvím, ale mělo i svůj vlastní obsah, který vychází z historického kontextu místa.
REKONSTRUKCE DOMU SLUŽEB
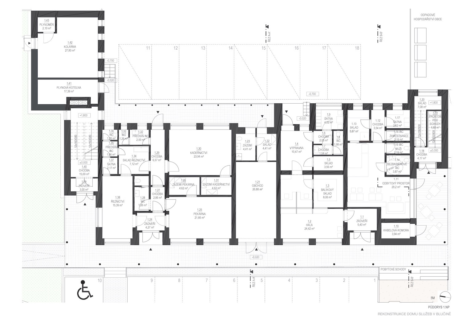
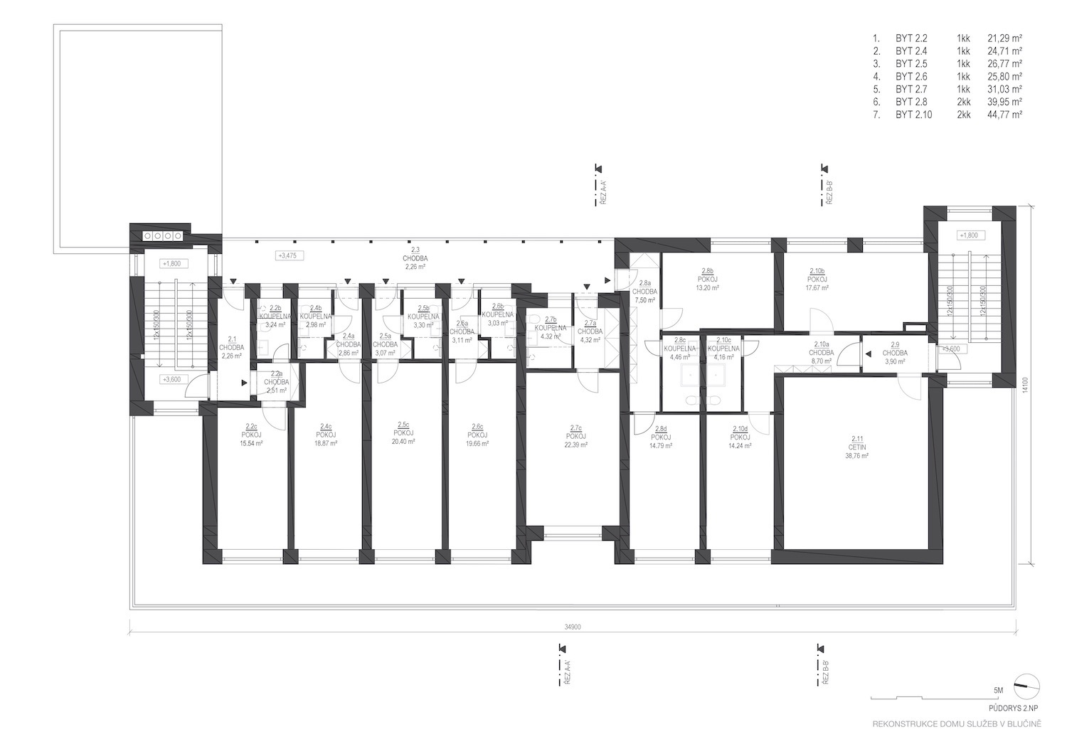
Nejnavštěvovanějším objektem v obci je právě Dům služeb, jehoř celková rekonstrukce je rovněž předmětem této studie. Většina obchodních nájemních provozů v rámci 1.NP bude ponechána v původní dispozici – řezník, kadeřnictví, pekárna, pošta a dle zadání obce přibyde i nová cukrárna. V druhém patře jsou navrženy sociální byty. Zásadním přínosem návrhu je zrušení středního schodiště, které dnes slouží jako přístup ke dvěma bytům a jeho dodatečně zazděné zádveří slouží jako odkladiště kol. Tím vznikne prostor pro další obchodní jednotku s odbytovou plochou, zázemí a skladem k zásobování ze dvora. Hlavním zásahem do dispozice ve 2.np je zrušení středního schodiště a zbudování nového stropu nad 1.np a vytvoření další bytové jednotky. V severní polovině domu, tak vznikne 5 malometrážních bytů typu 1+kk, které budou přístupné z přízemí severní schodišťovou věží a přes navrženou zasklenou pavlač, která zároveň poskytuje krytí zásobovací rampy v 1.np. Z této pavlače bude rovněž přístupný i jeden byt 2+kk. V bytech byly zrušeny stávající lodžie s výhledem do náměstí ve prospěch co největší plochy pokojů, výplně otvorů jsou zde navržené velkoformátové s otvíravým a větracím bočním kusem. Dojde rovněž k aplikaci akustických opatření pro mezibytové příčky a rekonstrukci sociálního zařízení.
MATERIÁLOVÉ ŘEŠENÍ
Navržené architektonické řešení Domu služeb vychází z původního členění budovy, které je nejen zachováno ale i podtrženo aplikací různých materiálů. Jednoduchý kontrast schodišťových věží s dřevěným obkladem a hladkou bílou omítkou hlavní hmoty zjemňují dřevěná okna opatřená světlou lazurou a doplňuje tmavě oplechovaný krycí ochoz v 1.np. Rovněž veškeré zámečnické a klempířské prvky jsou navrženy v tmavé – antracitové barvě. Navržené opěrné zídky ramp a pobytových schodů jsou navrženy z pohledového betonu, navržené pochůzí plochy naopak z betonu česaného.