
Projekt rodinného domu a jeho stavební program a velikost rostl úměrně se stavebníkovými představami z původní maringotky, přes malý objekt po dvoupatrový dům s galerií, ložnicí a zázemím v prostoru podkroví. Majitelé požadovali střední RD pro možnost útěku z centra Prahy, která je v příjemné dojezdové vzdálenosti pouze 1,5 h. Okolí tvoří dosud neobjevená zvlněná krajina CHKO Českého středohoří s původní zástavbou velkými německými zděnými statky, ovocnými sady, a tajemnými hrady.
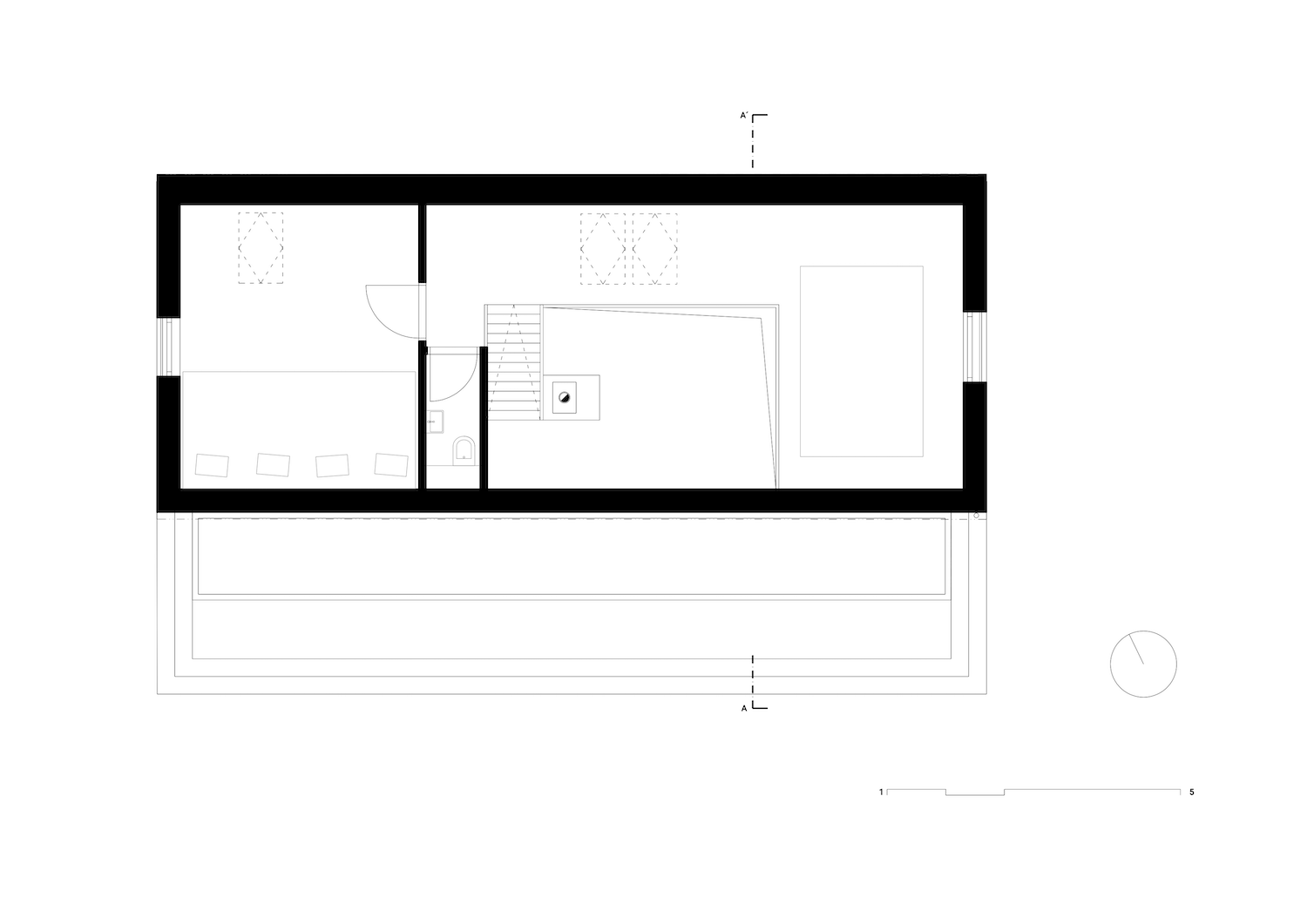
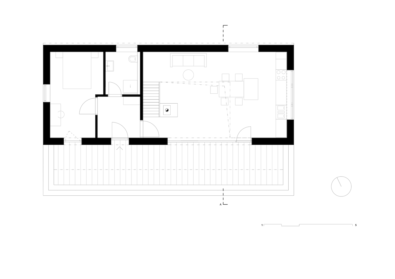
Jednopodlažní objekt s podkrovím je přístupný přes zádveří z JZ terasy,které odděluje ložnice majitele od obývacího pokoje s kuchyní a jídelnou se sedacím oknem, odkud se nabízí výhled do zahrady a na zelené panorama lemující silnici. Terasu cloní od nízkého zimního slunce a deště zavěšená pergola. Velkorysý obytný prostor s krbem je převýšený až do šikminy krovu. V prostoru nad kuchyní je vložená galerie spojená s podkrovním pokojem vloženým ochozem.
Konstrukčně je dům tvořen sloupkovou dřevěnou konstrukcí, použité materiály jsou horizontální modřínový obklad, dřevěná okna, falcovaná střecha + klempířské prvky z hliníkového tmavého plechu, vnitřní materiál jsou dřevovláknité desky s bílým nátěrem, biodeska se světlou lazurou, tmavá dlažba, dubová podlaha a nábytek.